Nemovitosti
Byt 3+kk, 98 m2, 4. NP, budova C
Hluboká nad Vltavou
10 167 520,-
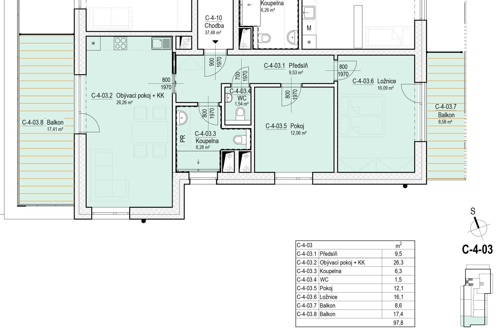
Nabízíme k prodeji bytovou jednotku číslo C-4-03 v prémiovém komunitním bydlení pro seniory v projektu SENIOR RESORT HLUBOKÁ, jež je navržen podle aktuálních trendů moderního bydlení s důrazem na kvalitu a dlouhodobou udržitelnost budov. Jedná se o luxusní byt o dispozici 3+kk nacházející se ve 4. NP budovy C. Stejně tak jako všechny ostatní bytové jednotky je i tato koncipována jako bezbariérová. Její podlahová plocha činí 71,8 m2 a disponuje na západní straně po celé své šířce terasou o výměře 17,4 m2 a na východní straně po celé své šířce balkonem o výměře 8,6 m2. Byt je svou délkou orientován na jih. Bytovou jednotku tvoří: předsíň o výměře 9,5 m2, obývací pokoj s kuchyňským koutem o velikosti 26,3 m2, ložnice o výměře 16,1 m2, další pokoj o velikosti 12,1 m2 a koupelna s toaletou o výměře 6,3 m2. V bytě najdeme ještě jedno samostatné WC o velikosti 1,5 m2. Dle přání lze dokoupit samostatnou sklepní kóji na patře.
Typ nemovitosti
Byt
Subtyp nemovitosti
3+kk
Operace
Prodej
ID nemovitosti
3403
Číslo bytu
C-4-03
Město
Hluboká nad Vltavou
Konstrukce
Cihlová
Plocha podlahová
72 m2
Plocha užitná
98 m2
Plocha terasy
17 m2
Bezbariérový
Ano
Stav objektu
Novostavba
Umístění objektu
Klidná část obce
Vydaný certifikát PENB
B - Velmi úsporná
Typ certifikátu PENB
č. 264/2020 Sb.
Soubory



