Nemovitosti
Byt 3+kk, 159,4 m2, 2. NP, budova B
Hluboká nad Vltavou
15 456 000,-
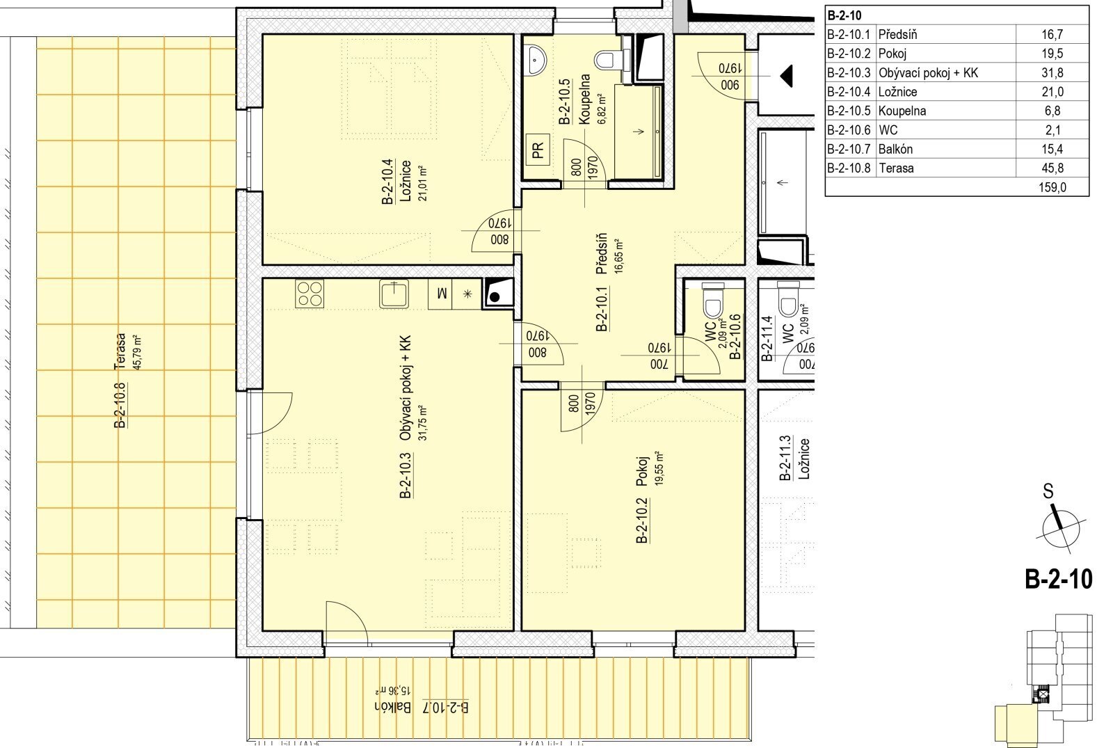
Nabízíme k prodeji bytovou jednotku číslo B-2-10 v prémiovém komunitním bydlení pro seniory v projektu SENIOR RESORT HLUBOKÁ, jež je navržen podle aktuálních trendů moderního bydlení s důrazem na kvalitu a dlouhodobou udržitelnost budov. Jedná se o luxusní byt o dispozici 3+kk nacházející se ve 2. NP budovy B. Stejně tak jako všechny ostatní bytové jednotky je i tato koncipována jako bezbariérová. Její podlahová plocha činí 98,2 m2 a disponuje po celé délce bytu terasou o velikosti 45,8 m2 s orientací na západ a balkonem s jižní orientací o výměře 15,4 m2. Bytovou jednotku tvoří: předsíň o výměře 16,7 m2, pokoj o velikosti 19,5 m2, obývací pokoj s kuchyňským koutem o velikosti 31,8 m2, ložnice o výměře 21,0 m2, koupelna s toaletou o výměře 6,8 m2 a samostatné WC o velikosti 2,1 m2. Dle přání lze dokoupit samostatnou sklepní kóji na patře.
Typ nemovitosti
Byt
Subtyp nemovitosti
3+kk
Operace
Prodej
ID nemovitosti
2210
Číslo bytu
B-2-10
Město
Hluboká nad Vltavou
Konstrukce
Cihlová
Plocha podlahová
98 m2
Plocha užitná
159 m2
Plocha terasy
46 m2
Bezbariérový
Ne
Stav objektu
Ve výstavbě
Umístění objektu
Klidná část obce
Vydaný certifikát PENB
B - Velmi úsporná
Typ certifikátu PENB
č. 264/2020 Sb.
Soubory



