Nemovitosti
Byt 2+kk, 87,8 m2, 1. NP, budova B
Hluboká nad Vltavou
6 360 000,-
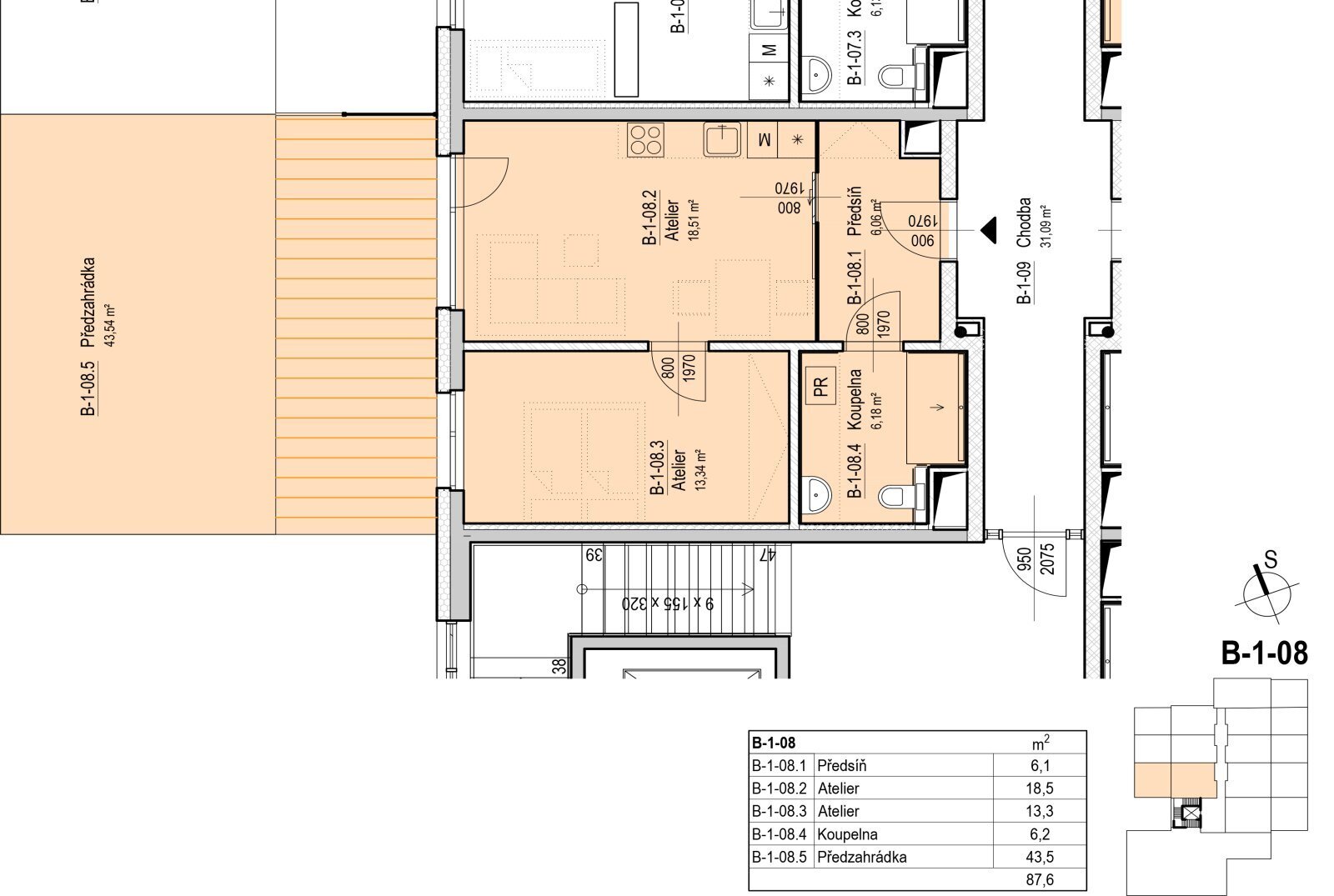
Nabízíme k prodeji bytovou jednotku (atelier) číslo B-1-08 v prémiovém komunitním bydlení pro seniory v projektu SENIOR RESORT HLUBOKÁ, jež je navržen podle aktuálních trendů moderního bydlení s důrazem na kvalitu a dlouhodobou udržitelnost budov. Jedná se o praktický byt/atelier nacházející se v 1. NP budovy B. Stejně tak jako všechny ostatní bytové jednotky je i tato koncipována jako bezbariérová. Její podlahová plocha činí 44,3 m2 a disponuje předzahrádkou o výměře 43,5 m2. Byt je orientovaný na západ. Bytovou jednotku tvoří: předsíň o výměře 6,1 m2, atelier o velikosti 18,5 m2, atelier o velikosti 13,3 m2 a koupelna s toaletou o výměře 6,2 m2. Dle přání lze dokoupit samostatnou sklepní kóji na patře.
Typ nemovitosti
Byt
Subtyp nemovitosti
2+kk
Operace
Prodej
ID nemovitosti
2108
Číslo bytu
B-1-08
Město
Hluboká nad Vltavou
Konstrukce
Cihlová
Plocha podlahová
44 m2
Plocha užitná
88 m2
Plocha zahrady
44 m2
Bezbariérový
Ne
Stav objektu
Ve výstavbě
Umístění objektu
Klidná část obce
Vydaný certifikát PENB
B - Velmi úsporná
Typ certifikátu PENB
č. 264/2020 Sb.
Soubory



