Nemovitosti
Byt 2+kk, 73 m2, 2. NP, budova B
Hluboká nad Vltavou
8 349 180,-
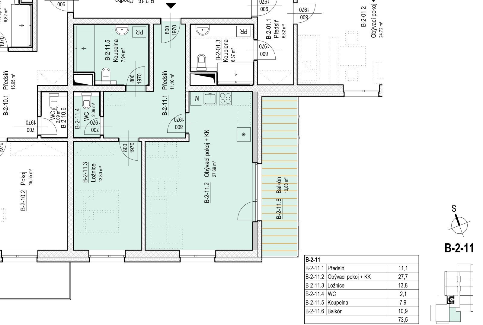
Nabízíme k prodeji bytovou jednotku číslo B-2-11 v prémiovém komunitním bydlení pro seniory v projektu SENIOR RESORT HLUBOKÁ, jež je navržen podle aktuálních trendů moderního bydlení s důrazem na kvalitu a dlouhodobou udržitelnost budov. Jedná se o luxusní byt o dispozici 2+kk nacházející se ve 2. NP budovy B. Stejně tak jako všechny ostatní bytové jednotky je i tato koncipována jako bezbariérová. Její podlahová plocha činí 62,1 m2 a disponuje balkonem o výměře 10,9 m2. Byt je orientovaný na východ. Bytovou jednotku tvoří: předsíň o výměře 11,1 m2, obývací pokoj s kuchyňským koutem o velikosti 27,7 m2, ložnice o výměře 13,8 m2, koupelna s toaletou o výměře 7,9 m2 a samostatné WC o velikosti 2,1 m2. Dle přání lze dokoupit samostatnou sklepní kóji na patře.
Typ nemovitosti
Byt
Subtyp nemovitosti
2+kk
Operace
Prodej
ID nemovitosti
2211
Číslo bytu
B-2-11
Město
Hluboká nad Vltavou
Konstrukce
Cihlová
Plocha podlahová
62 m2
Plocha užitná
73 m2
Bezbariérový
Ne
Stav objektu
Ve výstavbě
Umístění objektu
Klidná část obce
Vydaný certifikát PENB
B - Velmi úsporná
Typ certifikátu PENB
č. 264/2020 Sb.
Soubory



