Nemovitosti
Byt 2+kk, 59 m2, 3. NP, budova C
Hluboká nad Vltavou
6 095 540,-
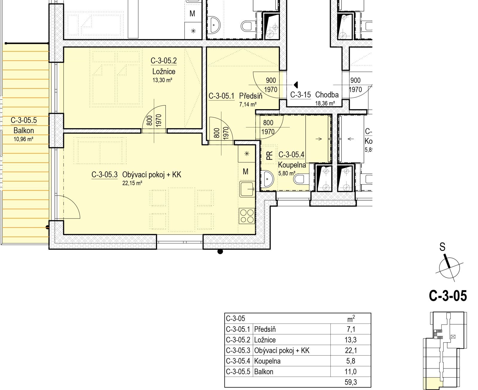
Nabízíme k prodeji bytovou jednotku číslo C-3-05 v prémiovém komunitním bydlení pro seniory v projektu SENIOR RESORT HLUBOKÁ, jež je navržen podle aktuálních trendů moderního bydlení s důrazem na kvalitu a dlouhodobou udržitelnost budov. Jedná se o praktický byt o dispozici 2+kk nacházející se ve 3. NP budovy C. Stejně tak jako všechny ostatní bytové jednotky je i tato koncipována jako bezbariérová. Její podlahová plocha činí 48,3 m2 a disponuje balkonem o výměře 11,0 m2. Byt je orientovaný na západ. Bytovou jednotku tvoří: předsíň o výměře 7,1 m2, obývací pokoj s kuchyňským koutem o velikosti 22,1 m2, ložnice o výměře 13,3 m2 a koupelna s toaletou o výměře 5,8 m2. Dle přání lze dokoupit samostatnou sklepní kóji na pa
Typ nemovitosti
Byt
Subtyp nemovitosti
2+kk
Operace
Prodej
ID nemovitosti
3305
Číslo bytu
C-3-05
Město
Hluboká nad Vltavou
Konstrukce
Cihlová
Plocha podlahová
48 m2
Plocha užitná
59 m2
Bezbariérový
Ano
Stav objektu
Novostavba
Umístění objektu
Klidná část obce
Vydaný certifikát PENB
B - Velmi úsporná
Typ certifikátu PENB
č. 264/2020 Sb.
Soubory



