Nemovitosti
Byt 2+kk, 53,9 m2, 2. NP, budova A
Hluboká nad Vltavou
7 572 750,-
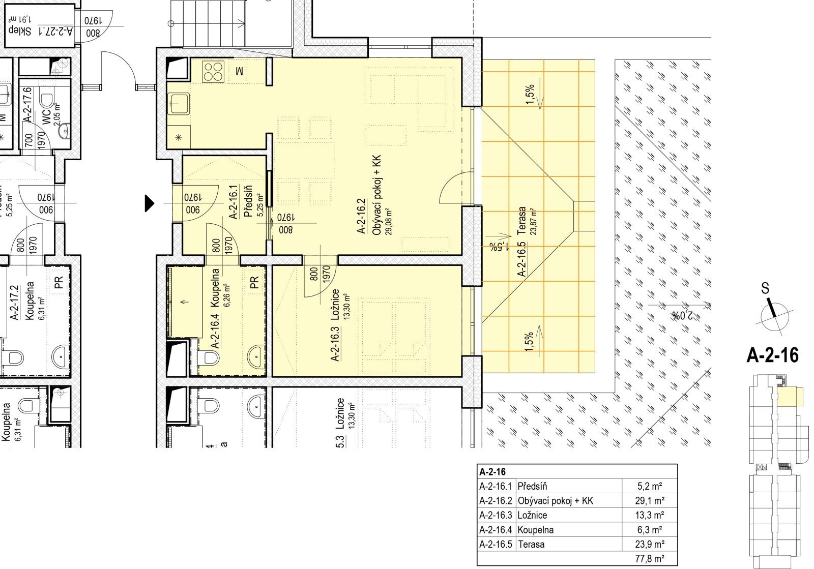
Nabízíme k prodeji bytovou jednotku číslo A-2-16 v prémiovém komunitním bydlení pro seniory v projektu SENIOR RESORT HLUBOKÁ, jež je navržen podle aktuálních trendů moderního bydlení s důrazem na kvalitu a dlouhodobou udržitelnost budov. Jedná se o luxusní byt o dispozici 2+kk nacházející se ve 2. NP budovy A. Stejně tak jako všechny ostatní bytové jednotky je i tato koncipována jako bezbariérová. Její podlahová plocha činí 53,9 m2 a disponuje terasou o výměře 23,9 m2. Byt je orientovaný na východ. Bytovou jednotku tvoří: předsíň o výměře 5,2 m2, obývací pokoj s kuchyňským koutem o velikosti 29,1 m2, ložnice o výměře 13,3 m2 a koupelna s toaletou o výměře 6,3 m2. Dle přání lze dokoupit samostatnou sklepní kóji na patře.
Typ nemovitosti
Byt
Subtyp nemovitosti
2+kk
Operace
Prodej
ID nemovitosti
1216
Číslo bytu
A-2-16
Město
Hluboká nad Vltavou
Konstrukce
Cihlová
Plocha podlahová
54 m2
Plocha užitná
78 m2
Bezbariérový
Ne
Stav objektu
Novostavba
Umístění objektu
Klidná část obce
Vydaný certifikát PENB
B - Velmi úsporná
Typ certifikátu PENB
č. 264/2020 Sb.
Soubory



