Nemovitosti
Byt 2+kk, 43,6 m2, 3. NP, budova A
Hluboká nad Vltavou
5 892 000,-
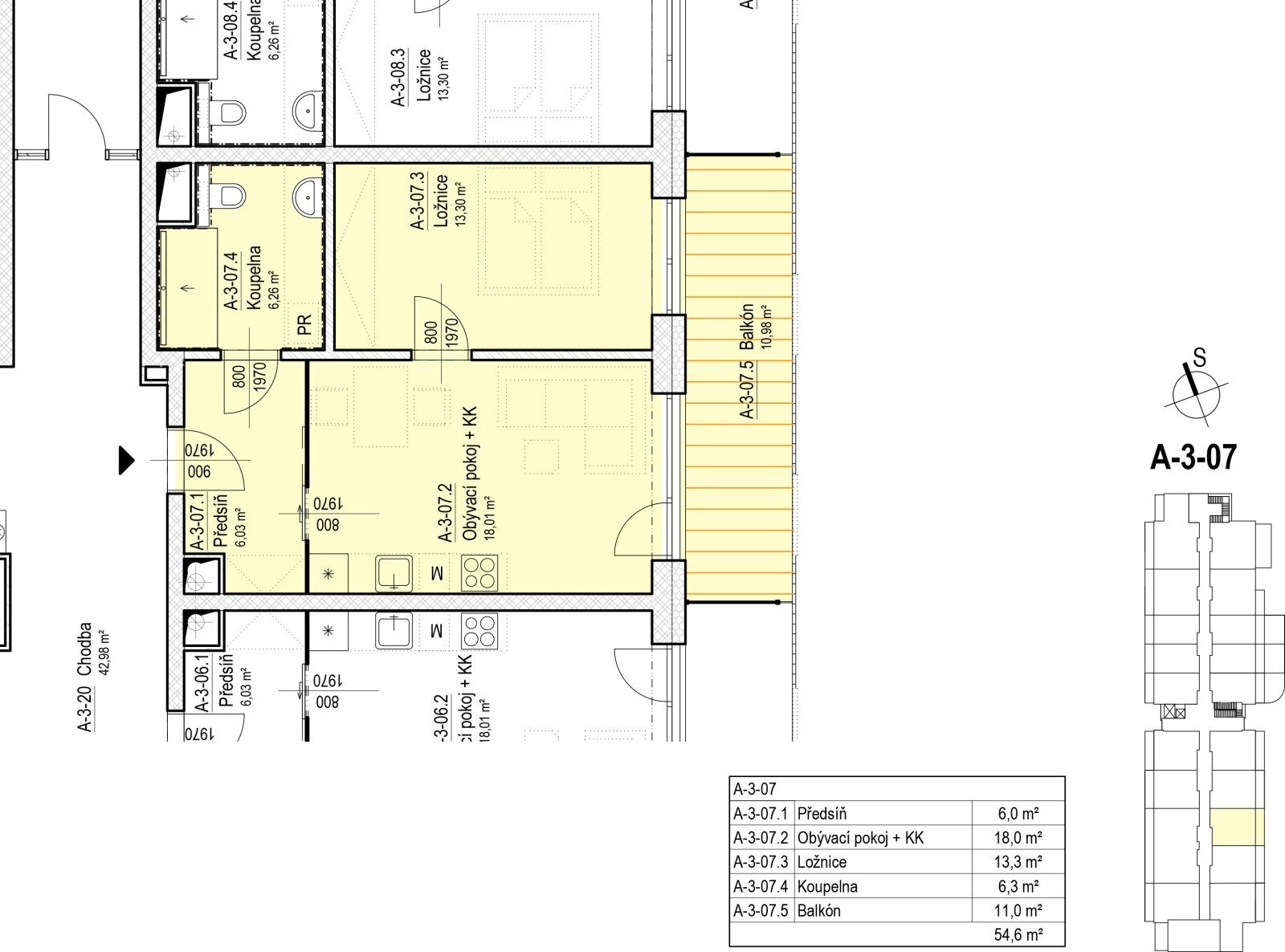
Nabízíme k prodeji bytovou jednotku číslo A-3-07v prémiovém komunitním bydlení pro seniory v projektu SENIOR RESORT HLUBOKÁ, jež je navržen podle aktuálních trendů moderního bydlení s důrazem na kvalitu a dlouhodobou udržitelnost budov. Jedná se o luxusní byt o dispozici 2+kk nacházející se ve 3. NP budovy A. Stejně tak jako všechny ostatní bytové jednotky je i tato koncipována jako bezbariérová. Její podlahová plocha činí 43,6 m2 a disponuje balkónem o výměře 11 m2. Byt je orientovaný na východ. Bytovou jednotku tvoří: předsíň o výměře 6 m2, obývací pokoj s kuchyňským koutem o velikosti 18 m2, ložnice o výměře 13,3 m2 a koupelna s toaletou o výměře 6,3 m2. Dle přání lze dokoupit samostatnou sklepní kóji na patře.
Typ nemovitosti
Byt
Subtyp nemovitosti
2+kk
Operace
Prodej
ID nemovitosti
1307
Číslo bytu
A-3-07
Město
Hluboká nad Vltavou
Konstrukce
Cihlová
Plocha podlahová
44 m2
Plocha užitná
55 m2
Plocha sklepa
11 m2
Bezbariérový
Ne
Stav objektu
Novostavba
Umístění objektu
Klidná část obce
Vydaný certifikát PENB
B - Velmi úsporná
Typ certifikátu PENB
č. 264/2020 Sb.
Soubory



