Nemovitosti
Byt 2+kk, 43,6 m2, 2. NP, budova A
Hluboká nad Vltavou
5 640 750,-
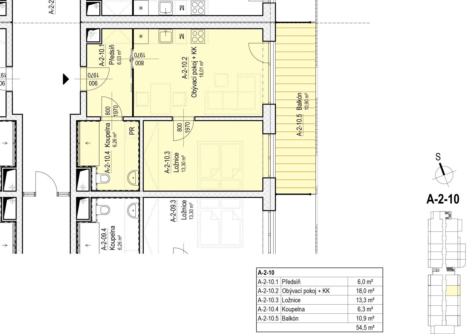
Nabízíme k prodeji bytovou jednotku číslo A-2-10 v prémiovém komunitním bydlení pro seniory v projektu SENIOR RESORT HLUBOKÁ, jež je navržen podle aktuálních trendů moderního bydlení s důrazem na kvalitu a dlouhodobou udržitelnost budov. Jedná se o luxusní byt o dispozici 2+kk nacházející se ve 2. NP budovy A. Stejně tak jako všechny ostatní bytové jednotky je i tato koncipována jako bezbariérová. Její podlahová plocha činí 43,6 m2 a disponuje balkónem o výměře 10,9 m2. Byt je orientovaný na východ. Bytovou jednotku tvoří: předsíň o výměře 6 m2, obývací pokoj s kuchyňským koutem o velikosti 18 m2, ložnice o výměře 13,3 m2 a koupelna s toaletou o výměře 6,3 m2. Dle přání lze dokoupit samostatnou sklepní kóji na patře.
Typ nemovitosti
Byt
Subtyp nemovitosti
2+kk
Operace
Prodej
ID nemovitosti
1210
Číslo bytu
A-2-10
Město
Hluboká nad Vltavou
Konstrukce
Cihlová
Plocha podlahová
44 m2
Plocha užitná
55 m2
Bezbariérový
Ne
Stav objektu
Novostavba
Umístění objektu
Klidná část obce
Vydaný certifikát PENB
B - Velmi úsporná
Typ certifikátu PENB
č. 264/2020 Sb.
Soubory



