Nemovitosti
Byt 1+kk, 68,2 m2, 1. NP, budova B
Hluboká nad Vltavou
4 939 200,-
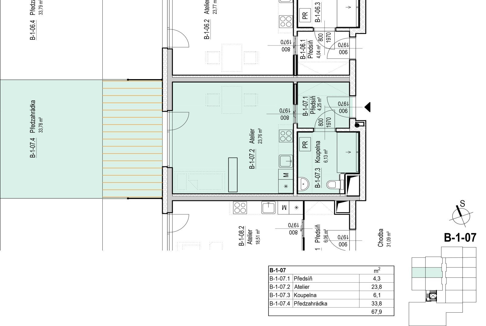
Nabízíme k prodeji bytovou jednotku (atelier) číslo B-1-07 v prémiovém komunitním bydlení pro seniory v projektu SENIOR RESORT HLUBOKÁ, jež je navržen podle aktuálních trendů moderního bydlení s důrazem na kvalitu a dlouhodobou udržitelnost budov. Jedná se o praktický byt/atelier nacházející se v 1. NP budovy B. Stejně tak jako všechny ostatní bytové jednotky je i tato koncipována jako bezbariérová. Její podlahová plocha činí 34,4 m2 a disponuje předzahrádkou o výměře 33,8 m2. Byt je orientovaný na západ. Bytovou jednotku tvoří: předsíň o výměře 4,3 m2, obývací pokoj s kuchyňským koutem o velikosti 23,8 m2 a koupelna s toaletou o výměře 6,1 m2. Dle přání lze dokoupit samostatnou sklepní kóji na patře.
Typ nemovitosti
Byt
Subtyp nemovitosti
1+kk
Operace
Prodej
ID nemovitosti
2107
Číslo bytu
B-1-07
Město
Hluboká nad Vltavou
Konstrukce
Cihlová
Plocha podlahová
34 m2
Plocha užitná
68 m2
Plocha zahrady
34 m2
Bezbariérový
Ne
Stav objektu
Ve výstavbě
Umístění objektu
Klidná část obce
Vydaný certifikát PENB
B - Velmi úsporná
Typ certifikátu PENB
č. 264/2020 Sb.
Soubory



