Nemovitosti
Byt 1+kk, 67,5 m2, 1. NP, budova C
Hluboká nad Vltavou
4 723 400,-
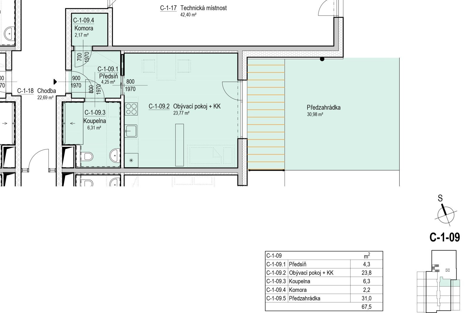
Nabízíme k prodeji bytovou jednotku číslo C-1-09 v prémiovém komunitním bydlení pro seniory v projektu SENIOR RESORT HLUBOKÁ, jež je navržen podle aktuálních trendů moderního bydlení s důrazem na kvalitu a dlouhodobou udržitelnost budov. Jedná se o praktický byt o dispozici 1+kk nacházející se ve 1. NP budovy C. Stejně tak jako všechny ostatní bytové jednotky je i tato koncipována jako bezbariérová. Její podlahová plocha činí 36,7 m2 a disponuje předzahrádkou o výměře 31,2 m2. Byt je orientovaný na východ. Bytovou jednotku tvoří: předsíň o výměře 4,3 m2, obývací pokoj s kuchyňským koutem o velikosti 23,8 m2, koupelna s toaletou o výměře 6,3 m2 a komora o výměře 2,2 m2. Dle přání lze dokoupit samostatnou sklepní kóji na patře.
Typ nemovitosti
Byt
Subtyp nemovitosti
1+kk
Operace
Prodej
ID nemovitosti
3109
Číslo bytu
C-1-09
Město
Hluboká nad Vltavou
Konstrukce
Cihlová
Plocha podlahová
37 m2
Plocha užitná
67 m2
Plocha zahrady
31 m2
Bezbariérový
Ano
Stav objektu
Ve výstavbě
Umístění objektu
Klidná část obce
Vydaný certifikát PENB
B - Velmi úsporná
Typ certifikátu PENB
č. 264/2020 Sb.
Soubory



