Nemovitosti
Byt 1+kk, 45,7 m2, 2. NP, budova B
Hluboká nad Vltavou
5 172 660,-
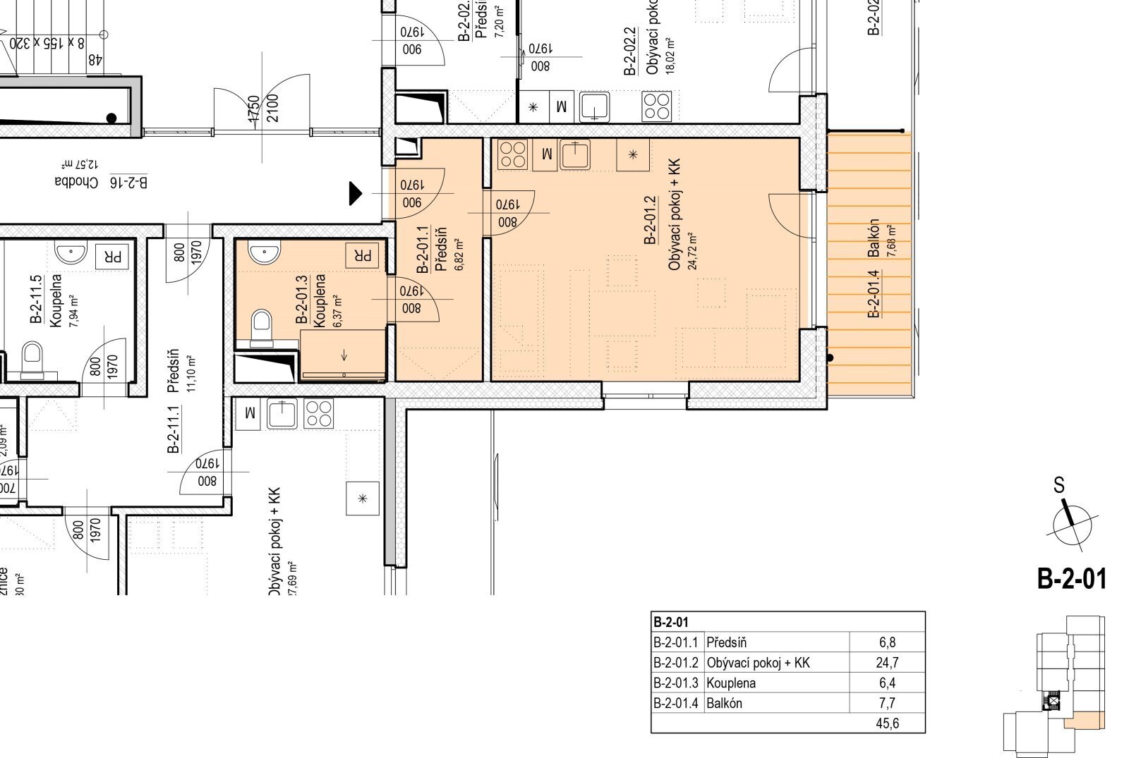
Nabízíme k prodeji bytovou jednotku číslo B-2-01 v prémiovém komunitním bydlení pro seniory v projektu SENIOR RESORT HLUBOKÁ, jež je navržen podle aktuálních trendů moderního bydlení s důrazem na kvalitu a dlouhodobou udržitelnost budov. Jedná se o praktický byt o dispozici 1+kk nacházející se ve 2. NP budovy B. Stejně tak jako všechny ostatní bytové jednotky je i tato koncipována jako bezbariérová. Její podlahová plocha činí 38,0 m2 a disponuje balkonem o výměře 7,7 m2. Byt je orientovaný na východ. Bytovou jednotku tvoří: předsíň o výměře 6,8 m2, obývací pokoj s kuchyňským koutem o velikosti 24,7 m2 a koupelna s toaletou o výměře 6,4 m2. Dle přání lze dokoupit samostatnou sklepní kóji na patře.
Typ nemovitosti
Byt
Subtyp nemovitosti
1+kk
Operace
Prodej
ID nemovitosti
2201
Číslo bytu
B-2-01
Město
Hluboká nad Vltavou
Konstrukce
Cihlová
Plocha podlahová
38 m2
Plocha užitná
46 m2
Bezbariérový
Ne
Stav objektu
Ve výstavbě
Umístění objektu
Klidná část obce
Vydaný certifikát PENB
B - Velmi úsporná
Typ certifikátu PENB
č. 264/2020 Sb.
Soubory



