Nemovitosti
Byt 1+kk, 42,5 m2, 2. NP, budova B
Hluboká nad Vltavou
4 721 520,-
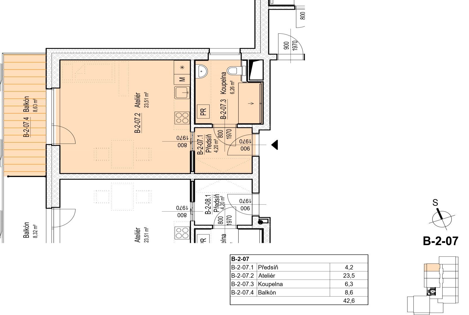
Nabízíme k prodeji bytovou jednotku (atelier) číslo B-2-07 v prémiovém komunitním bydlení pro seniory v projektu SENIOR RESORT HLUBOKÁ, jež je navržen podle aktuálních trendů moderního bydlení s důrazem na kvalitu a dlouhodobou udržitelnost budov. Jedná se o praktický byt/atelier nacházející se v 2. NP budovy B. Stejně tak jako všechny ostatní bytové jednotky je i tato koncipována jako bezbariérová. Její podlahová plocha činí 33,9 m2 a disponuje balkonem o výměře 8,6 m2. Byt je orientovaný na západ.
Bytovou jednotku tvoří: předsíň o výměře 4,2 m2, obývací pokoj s kuchyňským koutem o velikosti 23,5 m2 a koupelna s toaletou o výměře 6,3 m2. Dle přání lze dokoupit samostatnou sklepní kóji na patře.
Typ nemovitosti
Byt
Subtyp nemovitosti
1+kk
Operace
Prodej
ID nemovitosti
2207
Číslo bytu
B-2-07
Město
Hluboká nad Vltavou
Konstrukce
Cihlová
Plocha podlahová
34 m2
Plocha užitná
43 m2
Bezbariérový
Ne
Stav objektu
Ve výstavbě
Umístění objektu
Klidná část obce
Vydaný certifikát PENB
B - Velmi úsporná
Typ certifikátu PENB
č. 264/2020 Sb.
Soubory



