Nemovitosti
Byt 1+kk, 42,3 m2, 2. NP, budova B
Hluboká nad Vltavou
4 578 000,-
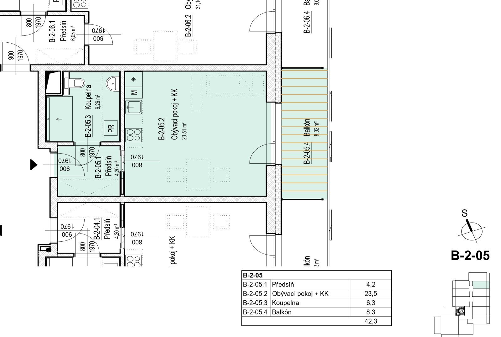
Nabízíme k prodeji bytovou jednotku číslo B-2-05 v prémiovém komunitním bydlení pro seniory v projektu SENIOR RESORT HLUBOKÁ, jež je navržen podle aktuálních trendů moderního bydlení s důrazem na kvalitu a dlouhodobou udržitelnost budov. Jedná se o praktický byt o dispozici 1+kk nacházející se ve 2. NP budovy B. Stejně tak jako všechny ostatní bytové jednotky je i tato koncipována jako bezbariérová. Její podlahová plocha činí 34,0 m2 a disponuje balkonem o výměře 8,3 m2. Byt je orientovaný na východ. Bytovou jednotku tvoří: předsíň o výměře 4,2 m2, obývací pokoj s kuchyňským koutem o velikosti 23,5 m2 a koupelna s toaletou o výměře 6,3 m2. Dle přání lze dokoupit samostatnou sklepní kóji na patře.
Typ nemovitosti
Byt
Subtyp nemovitosti
1+kk
Operace
Prodej
ID nemovitosti
2205
Číslo bytu
B-2-05
Město
Hluboká nad Vltavou
Konstrukce
Cihlová
Plocha podlahová
34 m2
Plocha užitná
42 m2
Bezbariérový
Ne
Stav objektu
Ve výstavbě
Umístění objektu
Klidná část obce
Vydaný certifikát PENB
G - Mimořádně nehospodárná
Typ certifikátu PENB
č. 264/2020 Sb.
Soubory



